Skip to main content

Cornell China Center

康奈尔中国中心

Cornell University

Beijing Center

The Beijing Center provides a Cornell-branded space for students, alumni, faculty, and guests to learn and network.

New Student Sendoff 2023

Facilities and Reservations

1208 Beijing IFC Tower B
8 Jianguomenwai Avenue
Chaoyang District, Beijing, PRC

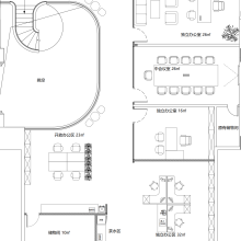
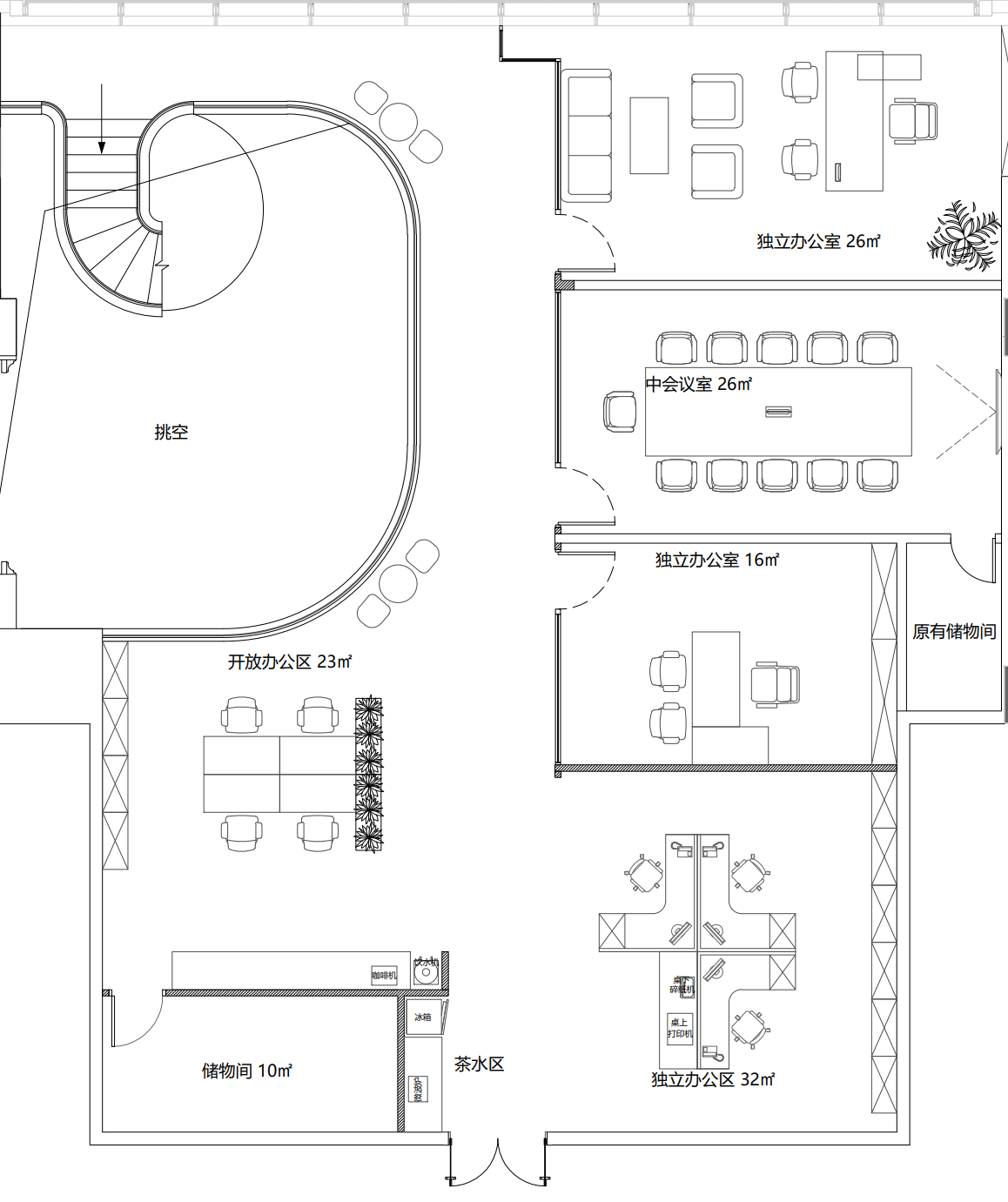
Room Types and Capacity

  • Multi-function Area (1,507 sqft / 140 sqm): theater set-up (78 person capacity) or classroom set-up (40 person capacity)
  • Conference Room (366 sqft / 34 sqm): theater set-up (25 person capacity) or meeting set-up (14 person capacity)

All areas/rooms have A/V equipment available.

Reservation Requests for Cornell Faculty and Staff

  • Complete the Space Use Request Form
  • Submit at least two weeks prior to the proposed use date
  • We will respond to your request within 5-7 business days
  • There is no space rental fee for Cornell-sponsored events

Please note: The Beijing Center is not permitted to host instructional activities for degree-granting programs.

Reservation Requests for Cornell Alumni Clubs

  • Please contact the China Center Beijing to make a reservation request
  • Please provide detailed information about your proposed usage

The Center significantly enhances Cornell’s brand visibility and supports the continued success of Cornell’s programs in China.

Peng Liu, Faculty Director, Cornell-Peking Program


Contact Us

Questions about the Beijing Center?

Email Us